Bunkier ekonomiczny STANDARD
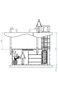
Bunkier to metalowe pomieszczenie przeznaczone do ochrony osób, usytuowane poniżej poziomu powierzchni ziemi. Do jego zainstalowania wymagana jest zbrojona płyta fundamentowa z betonu C20/25 (C30/35).
Do każdego klienta podchodzimy indywidualnie, zatem cenę należy konsultować z naszymi przedstawicielami.

Sklep zabezpieczony certyfikatem SSL. Gwarantowane bezpieczeństwo przeprowadzanych transakcji.

W przypadku dużych zakupów , zachęcamy do kontaktu z nami w celu negocjacji kosztów transportu

Możliwość zwrotu zakupionego towaru w ciągu 14 dni!
Bunkier wyposażony jest w pakiet filtracyjny szwajcarskich firm, który chroni przed bronią nuklearno-biologiczną oraz chemiczną co identyfikuje go jako nowoczesny schron NBC. Dodatkowym zabezpieczeniem są gazo szczelne i wodoszczelne drzwi oddzielające powierzchnie mieszkalną od strefy dekontaminacyjnej. Wejście do
bunkra jest zabezpieczone przez płytę wykonaną ze stali AR 500, która jest odporna na pociski większości kalibrów broni palnej.
Bunkier można zainstalować pod budynkiem na etapie budowy lub obok budynku już istniejącego.
Cała konstrukcja jest piaskowana i malowana dwoma warstwami farby cynkowej TEKNOZINC 90 SE. Zewnętrzna część bunkra pokryta jest pianą zamknięto-komórkową o żywotności 25 lat. Stalowa konstrukcja jest transportowana w dwóch elementach.
WYPOSAŻENIE:
- Właz wejściowy ze stali AR 500 z siłownikami gazowymi i dwoma ryglami od środka
- Oświetlenie LED
- Filtr NBC VA - 40
- Zejście do bunkra za pomocą drabiny stalowej
- Łóżko trzypiętrowe
WYMIARY:
- długość 5,8 m
- szerokość wew. 2,2 m
- szerokość zew. 2,45 m
- głębokość pod powierzchnią ziemi maksymalnie 2,50 m
- waga 6000 kg
Brak recenzji użytkowników.